Products
產品中心
Contact Us
聯系我們
工廠地址:中國江蘇常州新北區友邦商務大廈D座
銷售中心:中國江蘇省常州市D座303-308
業務電話:13701597080
咨詢熱線:0519-85155570
QQ:2746485611
郵箱:sun@ticsun.com
網址:www.hkhdtv.cn
銷售中心:中國江蘇省常州市D座303-308
業務電話:13701597080
咨詢熱線:0519-85155570
QQ:2746485611
郵箱:sun@ticsun.com
網址:www.hkhdtv.cn
渦旋式風冷水熱泵機組
簡介:
詳細說明
產品描述
億家人渦旋式風冷水熱泵機組用于為賓館、醫院、藥廠、影劇院、體育館、娛樂中心、商業 大廈、寫字樓、工礦企業等場所中央空調系統提供冷水或熱水。可根據需要進行模塊化自由組合。
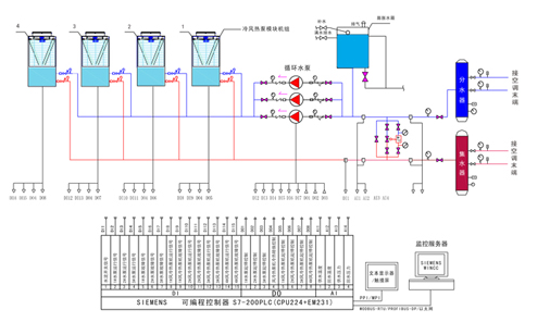
工作運行原理

產品特點
1、業內簡系統流程
熱泵機組取消單向閥,采用特有雙向膨脹閥節流技術,使得系統流程大為簡化,既降低了系統阻力,提高了性能,又減少了泄漏隱患,機組運行穩定可靠。
2、獨特平衡罐設計
專用的平衡罐可平衡冷熱工作時的制冷劑用量,只有一個接口,容積小,充注量少,融霜時可以快速提升系統低壓,增大流量,融霜。
3、業內緊湊結構
在簡化系統流程的基礎上實現業內緊湊的設計,單位冷量占地面積比業內同類產品小,重量輕,體積小,大大節省了用戶寶貴的建筑空間。
4、均分型蒸發器
設計的U形管殼管式換熱器,分液均勻,回油可靠,換熱效率高,質量穩定,維護方便。
5、設計和制造
模塊化結構,獨立工作回路,齊全的保護功能,工藝設備,完備檢測設施,讓機組質量穩定可靠。
6、操作簡單、安全
機組主控設備選用專用微電腦控制器,參數設置、查詢方便,操作簡單。機組運行、能量調節、自我保護均實現全自動監控,只需接通水系統和電源即可授入使用。
7、網絡通訊功能
模塊控制器全部通用RS485通訊總線連接,網絡上的控制器可以采用星形連接,也可采用串形連接。每只控制器均可以單獨工作,也可以多個控制器組合工作。文本顯示器自動檢測所有在線單元。
8、部分負荷功能,節能顯著
在部分負荷時,機組能以模塊單元步進的方式調節能量的輸出,使之與負荷處于匹配狀態,節能顯著,同時機組具有壓縮機磨損均衡和制熱除霜時的不間斷供熱功能。
9、環保制冷劑(可選)
可選R407C環保制冷劑,其臭氧耗損系數為零,安全無毒不可燃,符合環保要求。
產品應用場所

上一篇:沒有上一篇
下一篇:室內型除濕降溫空氣能




關注微信公眾號
關注抖音官方號